Overview
- 4
- 4
- 330 m²
- BOX TRIPLO
- CBI100-686-290589
Description
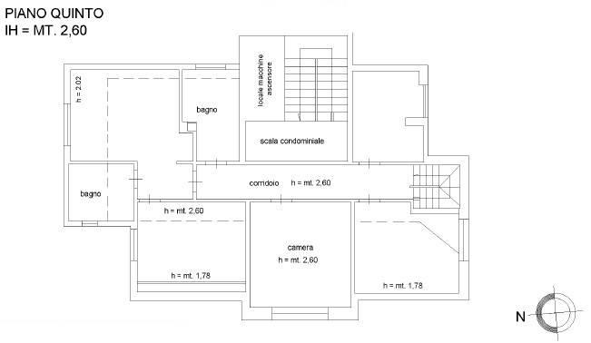
In una palazzina della fine degli anni ’60 immersa nel verde del Casaletto, proponiamo in vendita un attico e superattico di circa 330 mq, unico al piano, caratterizzato da spazi generosi, luminosità diffusa e una distribuzione studiata nei minimi dettagli.
L’ingresso si apre direttamente su un grande salone, vero cuore della casa: un ambiente di rappresentanza ampio e armonioso, suddiviso in più zone funzionali, conversazione, pranzo, studio, angolo lettura e completato da un bagno per gli ospiti.
La cucina, abitabile e molto luminosa, ha accesso diretto al terrazzo ed è affiancata da una lavanderia, una camera e un bagno di servizio.
Tutti gli ambienti del piano attico si affacciano su un terrazzo perimetrale con vista aperta sul verde, che estende la vivibilità degli interni e garantisce luce in ogni momento della giornata.
Una scenografica scala interna, in acciaio e vetro, collega al piano superiore, riservato alla zona notte, dove si trovano quattro camere da letto e due bagni. Due delle stanze sono attualmente adibite a cabine armadio, offrendo massima flessibilità nella gestione degli spazi.
L’intero appartamento è frutto di una ristrutturazione attenta e contemporanea, che ha valorizzato l’impianto originale con materiali di pregio, finiture su misura e soluzioni eleganti, pensate per adattarsi con facilità a qualsiasi stile d’arredo.
Completano la proprietà un box auto triplo e la possibilità di parcheggiare due macchine o moto nell’area condominiale.
Una residenza di qualità, riservata e funzionale, immersa nella quiete del quartiere e ben collegata al centro città.
Address
Open on Google Maps-
Address: Via Giacomo Lumbroso, Roma, RM, Italia
-
City: Roma
-
Zip/Postal Code: 00151
-
Area: Colli Portuensi
Energy Class
-
Energetic class: D
-
Global Energy Performance Index: 126.32 kWh/m²
- A+
- A
- B
- C
- 126.32 kWh/m² | Energy class DD
- E
- F
- G
- H
Mortgage Calculator
-
Down Payment
-
Loan Amount
-
Monthly Mortgage Payment
-
Property Tax
-
Home Insurance
-
PMI
-
Monthly HOA Fees

