Corso di Francia
- Prezzo riservato
Overview
- 4
- 3
- 175 m²
- CBI100-686-289405
Description
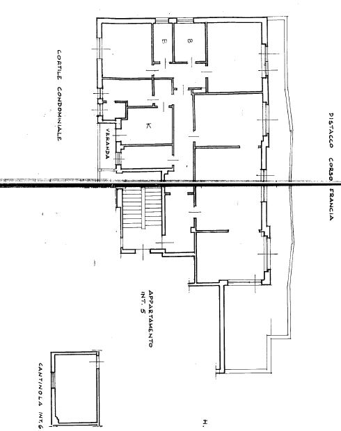
Nell’elegante quartiere di Vigna Clara, più precisamente su Corso Francia, abbiamo il piacere di presentare in vendita un  signorile appartamento, completamente da ristrutturare, di circa 175 mq con terrazza di circa 20 mq.
L’appartamento, al terzo piano di una bella palazzina in cortina degli anni sessanta, è composto da: ingresso, salone triplo con zona pranzo con affaccio diretto sul terrazzo, cucina abitabile, tre camere da letto matrimoniali, due bagni, una camera e bagno di servizio. L’immobile è molto luminoso e facilmente divisibile in due unità separate, grazie ad una pianta molto flessibile. Â
Sono presenti un’ampia ed asciutta cantina ed un box auto di pertinenza di circa mq. 20. Il riscaldamento è autonomo e le spese di condominio ammontano a circa € 150mensili.
Address
Open on Google Maps-
Address: Corso di Francia
-
City: Roma
-
Zip/Postal Code: 00191
-
Area: Fleming
Energy Class
-
Energetic class: G
- A+
- A
- B
- C
- D
- E
- F
- | Energy class GG
- H
