Overview
- 4
- 2
- 295 m²
- BOX DOPPIO
- CBI100-686-290161
Description
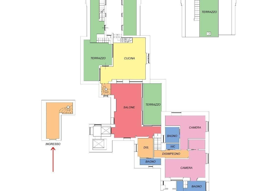
Ponte Milvio – Abbiamo il piacere di proporre in vendita un meraviglioso attico e super attico, con doppio ingresso, all’interno della storica Villa Brasini. Le cinque esclusive terrazze con altana panoramica e la vista che si apre su quattro lati fino ad abbracciare il cupolone di San Pietro, ne fanno un oggetto unico nella capitale. Accediamo al settimo piano, estremamente luminoso, moderno e movimentato nei suoi spazi, attraverso un ascensore privato ad uso esclusivo e dove troviamo un grande salone con camino, la suggestiva sala da pranzo, la grande cucina con la sua zona lavanderia e un bagno di cortesia, tutti con i propri affacci sui bellissimi spazi esterni. La zona notte è composta da una camera matrimoniale con bagno en suite e cabina armadio e un’altra camera da letto matrimoniale anch’essa con bagno en suite e affascinanti viste sul panorama romano. Una scala esterna ci conduce all’altana posta all’ottavo piano, con splendidi affacci sui tetti di Roma.
Completano la proprietà due box auto.
Address
Open on Google Maps-
Address: Via Flaminia, Roma, RM, Italia
-
City: Roma
-
Zip/Postal Code: 00191
-
Area: Flaminio, Ponte Milvio
Energy Class
-
Energetic class: G
-
Global Energy Performance Index: 175.50 kWh/m²
- A+
- A
- B
- C
- D
- E
- F
- 175.50 kWh/m² | Energy class GG
- H
Mortgage Calculator
-
Down Payment
-
Loan Amount
-
Monthly Mortgage Payment
-
Property Tax
-
Home Insurance
-
PMI
-
Monthly HOA Fees

