Overview
- 3
- 3
- 220 m²
Description
Attico e Super Attico – Prati via Lucrezio Caro.
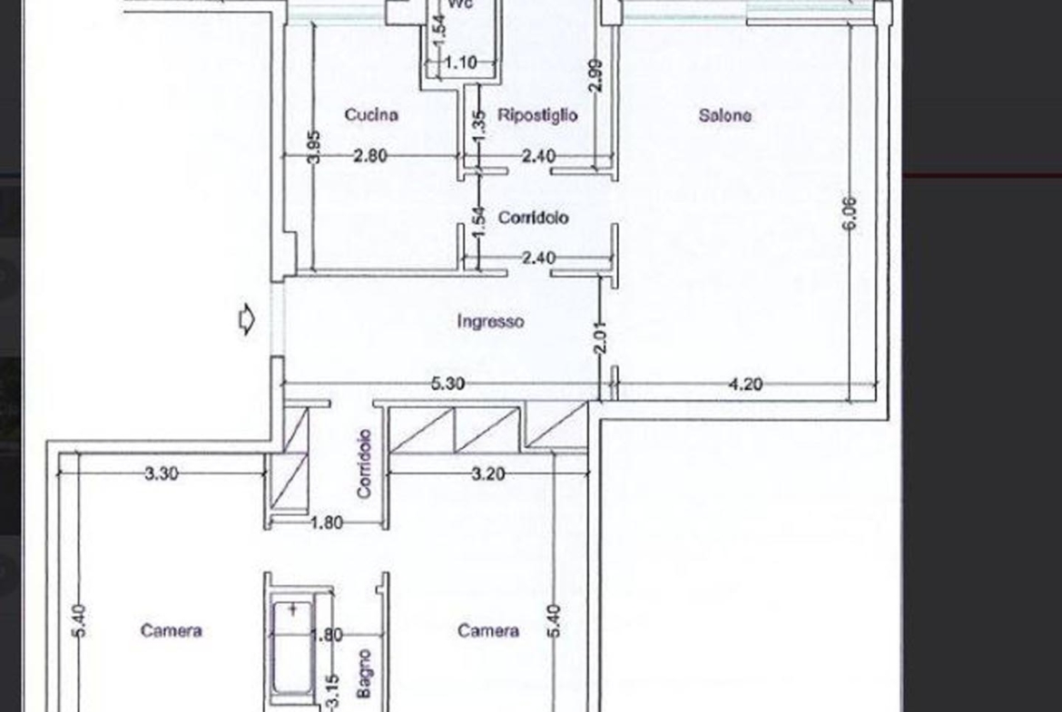
La proprietà con un suggestivo terrazzo nel cuore di Prati a due passi da Piazza del Popolo e da Castel Sant’ Angelo, si trova in un prestigioso stabile dei primi del ‘900 con portierato. Si tratta di un raffinato attico e super attico di circa 220 metri quadri coperti oltre a 50 metri quadri di terrazzo.
L’ appartamento é perfettamente diviso in zona giorno e zona notte, attualmente consta di salone triplo di circa 70 metri quadri, ampia cucina abitabile e bagno. La zona notte é composta da una luminosa camera da letto con due finestre, da una seconda camera da letto/ studio, ampia sala da bagno ed un ambiente lavanderia-stireria. La flessibile struttura interna permette la facile realizzazione di una terza camera da letto.
Una prestigiosa scala in legno a vista, conduce dal salone al super-attico, dal quale si può accedere anche dal secondo ingresso. Si é accolti nel super attico in un affascinante ambiente ad oggi ad uso studio professionale. L’ ambiente studio si proietta verso la terrazza. A questo livello c’é un bagno ospiti stile inglese ed un grazioso atrio di accesso al super attico dalle scale condominiali.
Address
Open on Google Maps-
Address: VIA LUCREZIO CARO 62
-
City: Roma
-
Area: Prati
Features
Energy Class
-
Energetic class: G
-
Global Energy Performance Index: 175.5 kWh/mq
- A+
- A
- B
- C
- D
- E
- F
- 175.5 kWh/mq | Energy class GG
- H
